咨詢熱線
0755-27807696


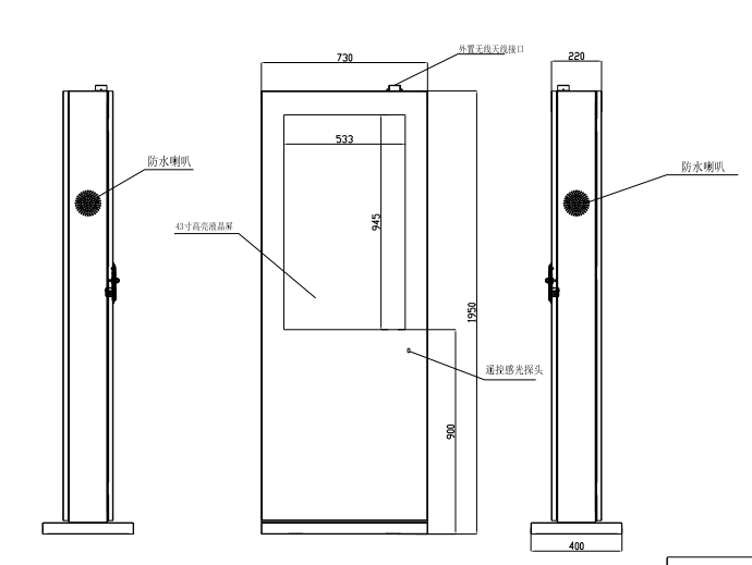
產品特性:
結構:防水、防塵、防曬、防腐蝕、防爆、防紫外線、防盜、防生物、 防霉菌、外觀精美,可定制。
顯示:高清、高亮、智能感光、全視角 。
電子:防雷、漏電保護、智能定時、智能溫度控制系統、
增配:支持遠程監控、觸摸互動、智能銀行卡/二維碼/身份證識別、智能打印 。
0755-27807696
● 集研發、生產、銷售及安裝為一體的大型拼接屏制造廠商
● 近1000平方的標準生產車間,注冊資金1000萬
● 30多個系列,商用顯示產品超過200+款,滿足一站式采購需求
● 匯聚經驗豐富的外觀ID設計師、結構工程師、施工安裝等服務團隊
● 提供結構設計、模具制造、鈑金外殼加工、表面處理等整體解決方案
● 已為眾多安防和商用顯示項目提供個性化產品定制服務,獲得客戶一致認可
● 擁有嚴格的質量管理體系,自動化流水生產線。
● 通過ISO9001體系認證,ISO14001:2004環境管理體系
● 榮獲CCC、CE、FCC、ROHS、UL認證、節能認證等權威認證,支持政府投標項目
● 與德邦、順豐、百騰等多家物流公司長期合作,每筆訂單都保價,碎屏包賠
● 產品提供1-3年質保和免費售后維護,100家售后服務網點
● 技術人員7*24H快速響應,提供電話、網絡指導及上門維修服務